マンション ランジュ2000ohjima
所在地
江東区北砂5丁目
8,980万円
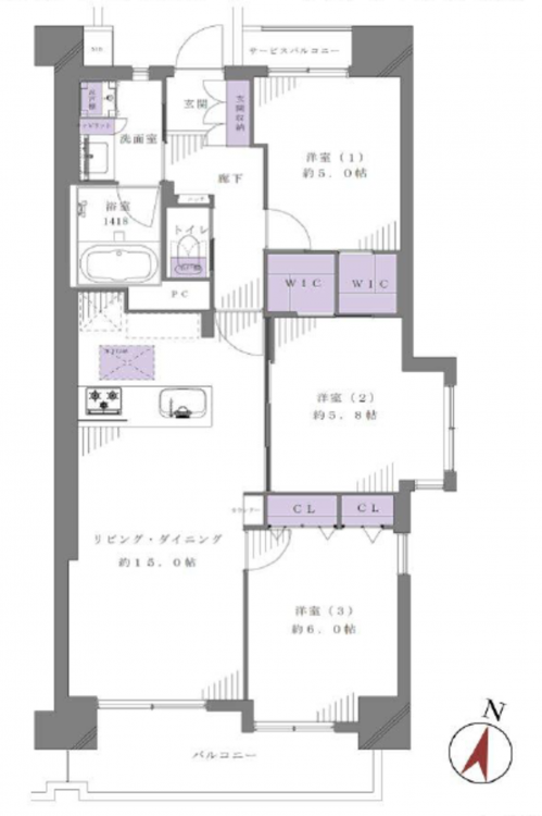
74.07m²
3LDK
新規リノベーション物件(2026年6月完了予定)
物件概要
- 交通
-
都営新宿線 大島駅 まで 徒歩7分
- 専有面積
- 壁芯 74.07㎡
- バルコニー
-
9.87㎡ (南東側)
面積不明 - 所在階/階数
- 9階/14階
- 築年数
-
2000年
(平成12)
1月
築26年 - 建ぺい率
- 容積率
- 土地権利
- 所有権
- 構造および階数
- SRC(鉄骨鉄筋コンクリート) 造 地上14階建
- 総戸数
- 53戸
- 小学校区
- 第六砂町 ( 550m )
- 中学校区
- 砂町 ( 84m )
- 地目
- 現況
- 空
- 引渡時期
- 相談
- 駐車場
- 空有
- 駐車場月額
- 23,000〜27,000円/月
- 管理形態
- 全部委託
- 管理方式
- 管理会社
- 管理費
- 12,220円
- 修繕積立費
- 20,030円
- 上水道
- 下水道
- ガス
- 都市計画
- 用途地域
- 近隣商業
- 設備・条件
- システムキッチン、食器洗浄乾燥機、浴室乾燥機、追い焚き、ペット可、エレベーター
- 備考
-
・内装リフォーム後渡
・手数料3%(税込) - 取引態様
- 仲介



