マンション ウインザーハイム南砂
所在地
江東区南砂1丁目
5,680万円
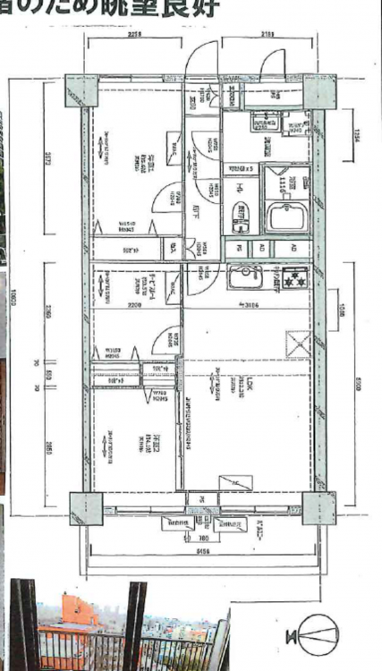
60.42m²
2SLDK
物件概要
- 交通
-
半蔵門線 住吉駅 まで 徒歩15分
東西線 東陽町駅 まで 徒歩20分
- 専有面積
- 60.42㎡
- バルコニー
-
8.55㎡ (西側)
面積不明 - 所在階/階数
- 13階/14階
- 築年数
-
1981年
(昭和56)
8月
築44年 - 建ぺい率
- 容積率
- 土地権利
- 所有権
- 構造および階数
- SRC(鉄骨鉄筋コンクリート) 造 地上14階建
- 総戸数
- 714戸
- 小学校区
- 北砂 ( 550m )
- 中学校区
- 第二南砂 ( 300m )
- 地目
- 現況
- 空
- 引渡時期
- 相談
- 駐車場
- 空無
- 駐車場月額
- 管理形態
- 全部委託
- 管理方式
- 管理人日勤
- 管理会社
- 管理費
- 8,000円
- 修繕積立費
- 10,050円
- 上水道
- 公共
- 下水道
- 公共
- ガス
- 都市ガス
- 都市計画
- 用途地域
- 商業
- 設備・条件
- エレベーター
- 備考
- 取引態様
- 仲介



