マンション クレヴィスタ亀戸6
所在地
江東区亀戸4丁目
3,680万円
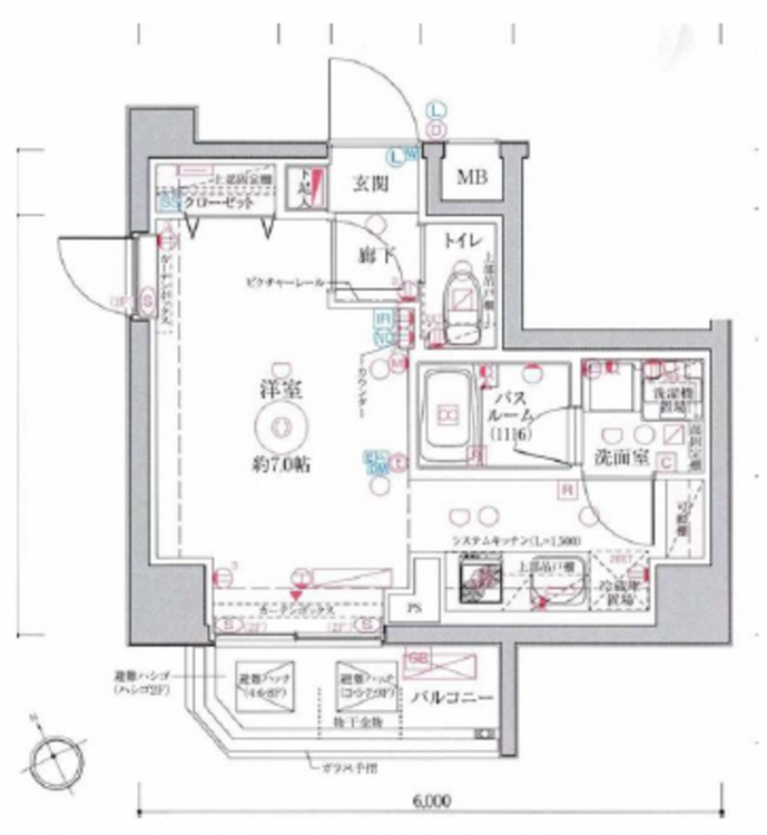
25.80m²
1R
物件概要
- 交通
-
東武亀戸線 亀戸水神駅 まで 徒歩10分
総武中央線 亀戸駅 まで 徒歩13分
- 専有面積
- 25.80㎡
- バルコニー
-
面積不明
面積不明 - 所在階/階数
- 3階/9階
- 築年数
-
2022年
(令和4)
7月
築3年 - 建ぺい率
- 容積率
- 土地権利
- 所有権
- 構造および階数
- RC(鉄筋コンクリート) 造 地上9階建
- 総戸数
- 37戸
- 小学校区
- 香取 ( 150m )
- 中学校区
- 第二亀戸 ( 600m )
- 地目
- 現況
- 賃貸中
- 引渡時期
- 相談
- 駐車場
- 駐車場月額
- 管理形態
- 全部委託
- 管理方式
- 管理人巡回
- 管理会社
- (株)インヴァランス
- 管理費
- 9,030円
- 修繕積立費
- 1,810円
- 上水道
- 公共
- 下水道
- 公共
- ガス
- 都市ガス
- 都市計画
- 用途地域
- 準工業
- 設備・条件
- オートロック、エレベーター、宅配ボックス・24時間ゴミ出し可
- 備考
- 取引態様
- 仲介



