マンション ルーブル亀戸天神前
所在地
江東区亀戸3丁目
3,000万円
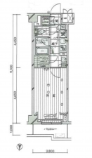
25.48m²
1K
物件概要
- 交通
-
総武中央線 錦糸町駅 まで 徒歩11分
総武中央線 亀戸駅 まで 徒歩14分
- 専有面積
- 25.48㎡
- バルコニー
-
3.04㎡
面積不明 - 所在階/階数
- 7階/9階
- 築年数
-
2014年
(平成26)
4月
築11年 - 建ぺい率
- 容積率
- 土地権利
- 所有権
- 構造および階数
- RC(鉄筋コンクリート) 造 地上9階建
- 総戸数
- 120戸
- 小学校区
- 第一亀戸 ( 650m )
- 中学校区
- 第三亀戸 ( 950m )
- 地目
- 現況
- 居住中
- 引渡時期
- 相談
- 駐車場
- 空無
- 駐車場月額
- 管理形態
- 全部委託
- 管理方式
- 管理人巡回
- 管理会社
- 管理費
- 修繕積立費
- 上水道
- 下水道
- ガス
- 都市ガス
- 都市計画
- 用途地域
- 商業
- 設備・条件
- モニタ付インターホン、オートロック、ペット可、エレベーター
- 備考
- 取引態様
- 仲介



