マンション 亀戸リリエンハイム

  • #中古マンション
  • #江東区亀戸
  • 1/4
    江東区亀戸、マンションの外観画像です

    【外観】

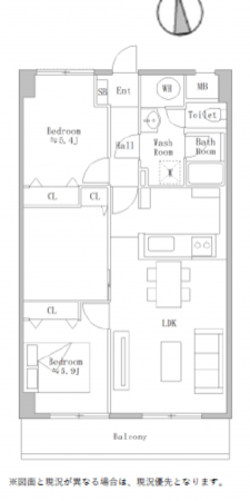
    江東区亀戸、マンションの間取り画像です

    【間取り】

    江東区亀戸、マンションの外観画像です

    【外観】

    江東区亀戸、マンションのエントランス画像です

    【エントランス】

    江東区亀戸、マンションの外観画像です
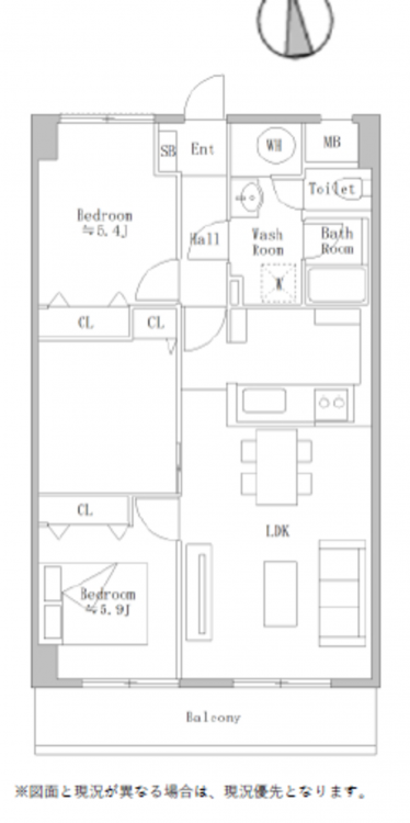
    江東区亀戸、マンションの間取り画像です
    江東区亀戸、マンションの外観画像です
    江東区亀戸、マンションのエントランス画像です
    江東区亀戸、マンションの外観画像です
    江東区亀戸、マンションの間取り画像です
    江東区亀戸、マンションの外観画像です
    江東区亀戸、マンションのエントランス画像です
    所在地
    江東区亀戸4丁目
    3,160万円
    66.78m² 3LDK

    JR総武線「亀戸」駅から徒歩8分、東武亀戸線「亀戸水神」駅から徒歩7分という立地です。
    通勤・通学に便利な立地です。都心へのアクセスもスムーズです。
    エレベーター完備、TVモニター付きインターホン、駐輪場・バイク置場、駐車場など暮らしに便利な設備がございます。

    ・アトレ亀戸まで 徒歩8分
    ・亀戸中央公園まで 徒歩9分
    ・江東区亀戸出張所まで 徒歩10分
    ・ファミリーマートまで 徒歩1分
    ・オリンピックスーパーまで 徒歩5分
    ・水神小学校まで 徒歩3分

    物件概要

    交通

    総武中央線 まで 徒歩888分

    専有面積
    壁芯 66.78㎡
    バルコニー
    7.56㎡ (南側)
    面積不明
    所在階/階数
    1階/10階
    築年数
    1981年 (昭和56) 5月
    築44年
    建ぺい率
    容積率
    土地権利
    旧法賃借
    構造および階数
    SRC(鉄骨鉄筋コンクリート) 造 地上10階建
    総戸数
    68戸
    小学校区
    香取 ( 500m )
    中学校区
    第二亀戸 ( 1100m )
    地目
    現況
    引渡時期
    相談
    駐車場
    駐車場月額
    管理形態
    全部委託
    管理方式
    管理人日勤
    管理会社
    株式会社合人社計画研究所
    管理費
    10,000円
    修繕積立費
    10,510円
    上水道
    下水道
    ガス
    都市計画
    用途地域
    2種住居
    設備・条件
    システムキッチン、カウンターキッチン、食器洗浄乾燥機、洗浄便座、エレベーター
    備考
    取引態様
    仲介
    周辺地図を確認する

    (弊社管理番号: 5001651)

    【更新日】2025年10月11日

    【次回更新日】2025年11月11日

    その他周辺物件

    最近チェックした物件

    Company 会社紹介

    この物件は10人の方が
    興味を持っています

    江東区の不動産情報

    HPを見たと言ってお気軽にお問い合わせください

    無料相談・お電話窓口

    0120-537-755
    営業時間:9:00〜18:00 定休日:火曜日、水曜日