マンション グランアジール東京アクアレジデンス

  • #角部屋
  • #中古マンション
  • #江東区東砂
  • 1/3
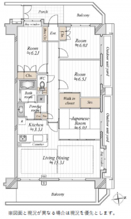
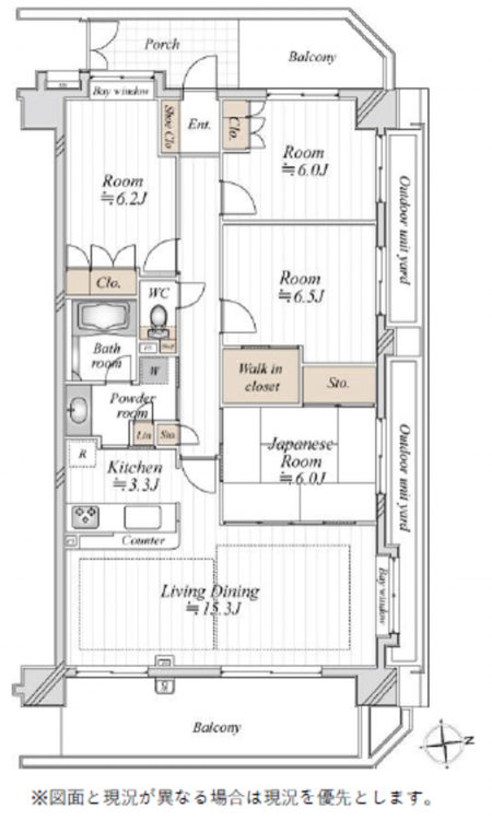
    江東区東砂、マンションの間取り画像です

    【間取り】

    江東区東砂、マンションの画像です
    江東区東砂、マンションの間取り画像です
    江東区東砂、マンションの画像です
    江東区東砂、マンションの画像です
    江東区東砂、マンションの間取り画像です
    江東区東砂、マンションの画像です
    所在地
    江東区東砂8丁目
    4,180万円
    94.25m² 4LDK

    角部屋・2面バルコニーで日当たり良好!
    東京メトロ東西線「南砂町」駅まで徒歩13分で都心へのアクセスが良好!
    大型商業施設が徒歩圏内!

    江東区立第五砂町小学校:約350m 徒歩約5分
    江東区立第二砂町中学校:約450m 徒歩約6分
    イオンフードスタイルSUNAMO店:約600m 徒歩約8分
    セブンイレブン江東東砂8丁目店:約350m 徒歩約5分
    江東東砂八郵便局:約300m 徒歩約4分
    荒川・砂町水辺公園:約130m 徒歩約2分

    物件概要

    交通

    東西線 南砂町駅 まで 徒歩13分

    専有面積
    壁芯 94.25㎡
    バルコニー
    面積不明
    面積不明
    所在階/階数
    3階/15階
    築年数
    2004年 (平成16) 2月
    築21年
    建ぺい率
    容積率
    土地権利
    旧法地上
    構造および階数
    RC(鉄筋コンクリート) 造 地上15階建
    総戸数
    101戸
    小学校区
    第五砂町 ( 350m )
    中学校区
    第三砂町 ( 450m )
    地目
    現況
    居住中
    引渡時期
    予定
    駐車場
    駐車場月額
    3,300円/月
    管理形態
    全部委託
    管理方式
    管理会社
    東急コミュニティー
    管理費
    16,500円
    修繕積立費
    20,550円
    上水道
    公共
    下水道
    公共
    ガス
    都市ガス
    都市計画
    用途地域
    準工業
    設備・条件
    床暖房、ウォークインクローゼット、角部屋、エレベーター
    備考
    取引態様
    仲介
    周辺地図を確認する

    (弊社管理番号: 5001522)

    【更新日】2025年10月10日

    【次回更新日】2025年11月10日

    その他周辺物件

    最近チェックした物件

    Company 会社紹介

    江東区の不動産情報

    HPを見たと言ってお気軽にお問い合わせください

    無料相談・お電話窓口

    0120-537-755
    営業時間:9:00〜18:00 定休日:火曜日、水曜日