マンション 東陽町コーポラス
所在地
江東区東陽3丁目
3,480万円
56.47m²
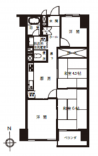
4DK
東京メトロ東西線「東陽町」駅から徒歩4分、東西線「木場」駅から徒歩6分と通勤・通学に便利です。
10階部分で眺望がよく、南向きなので日当たり抜群です。
くすりの福太郎 東陽町3丁目店:0m 徒歩0分
ローソン JPローソン深川郵便局店:約450m 徒歩約6分
デイリーヤマザキ 東陽町駅前店:約450m 徒歩約6分
ファミリーマート 東陽町駅前店:約280m 徒歩約4分
まいばすけっと 東陽町駅前店:約500m 徒歩約7分
イトーヨーカドー 木場店:約1000m 徒歩約13分
物件概要
- 交通
-
東西線 東陽町駅 まで 徒歩4分
東西線 木場駅 まで 徒歩6分
- 専有面積
- 56.47㎡
- バルコニー
-
面積不明 (南側)
面積不明 - 所在階/階数
- 10階/14階
- 築年数
-
1973年
(昭和48)
12月
築52年 - 建ぺい率
- 容積率
- 土地権利
- 所有権
- 構造および階数
- SRC(鉄骨鉄筋コンクリート) 造 地上14階建
- 総戸数
- 73戸
- 小学校区
- 東陽 ( 220m )
- 中学校区
- 東陽 ( 400m )
- 地目
- 現況
- 賃貸中
- 引渡時期
- 即時
- 駐車場
- 駐車場月額
- 管理形態
- 全部委託
- 管理方式
- 管理人日勤
- 管理会社
- 日本ハウズイング㈱
- 管理費
- 11,500円
- 修繕積立費
- 11,000円
- 上水道
- 下水道
- ガス
- 都市計画
- 用途地域
- 商業
- 設備・条件
- ペット可、エレベーター
- 備考
- 修繕積立一時金:19,841円/月(2026年5月分まで)
- 取引態様
- 仲介



