マンション Rising Place Kameido
所在地
江東区亀戸7丁目
3,680万円
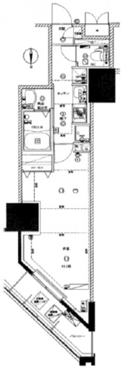
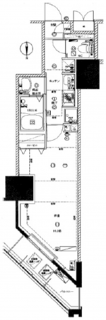
31.82m²
1K
2路線利用可能でアクセス良好!生活施設が充実した環境です。
タイル貼りや御影石を用いた高級感あるデザインが特長のスタイリッシュな外観!
ローソン 亀戸七丁目店:約 24 m 徒歩約1分
セブン-イレブン 江東亀戸7丁目店:約90m 徒歩約2分
ファミリーマート TKD 亀戸六丁目店:約210m 徒歩約3分
miniピアゴ 亀戸7丁目店:約290m 徒歩約4分
まいばすけっと 江東亀戸7丁目店:約 300m 徒歩約4分
ライフ 亀戸店:約 600m 徒歩約8分
オーケー 亀戸店:約650m 徒歩約9分
ファーマライズ薬局 亀戸店:約230m 徒歩約4分
まなびの森保育園 亀戸:約97m 徒歩約2分
ひらの亀戸ひまわり診療所:約67m 徒歩約1分
都立亀戸中央公園:約 270m 徒歩約4分
江東区立亀戸図書館:約450m 徒歩約6分
物件概要
- 交通
-
東武亀戸線 亀戸水神駅 まで 徒歩6分
- 専有面積
- 壁芯 31.82㎡
- バルコニー
-
5.12㎡
面積不明 - 所在階/階数
- 15階/18階
- 築年数
-
2015年
(平成27)
7月
築10年 - 建ぺい率
- 容積率
- 土地権利
- 所有権
- 構造および階数
- RC(鉄筋コンクリート) 造 地上18階建
- 総戸数
- 243戸
- 小学校区
- 浅間竪川 ( 800m )
- 中学校区
- 亀戸 ( 800m )
- 地目
- 現況
- 賃貸中
- 引渡時期
- 相談
- 駐車場
- 駐車場月額
- 管理形態
- 全部委託
- 管理方式
- 管理人巡回
- 管理会社
- 管理費
- 6,410円
- 修繕積立費
- 9,370円
- 上水道
- 下水道
- ガス
- 都市計画
- 用途地域
- 商業
- 設備・条件
- BS、CS、システムキッチン
- 備考
- 取引態様
- 仲介



