マンション AZEST亀戸Ⅱ
所在地
江東区亀戸5丁目
2,800万円
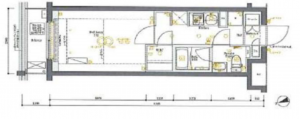
23.06m²
1R
東武亀戸線「亀戸水神駅」まで徒歩約4分、JR総武線「亀戸駅」まで徒歩約7分とアクセス抜群!
商店街やスーパー、公園も近く、住みやすい環境!
まいばすけっと 江東亀戸5丁目店:約237~238m(徒歩約3分)
TSURUKAME 亀戸センタープラザ店:約203m
ライフ カメイドクロック店:約415m
ローソン 亀戸水神店:約336–337m
ファミリーマート 亀戸四丁目店:約449m
ファーマライズ薬局亀戸店:約241m
江東区立水神小学校:約245–268m(徒歩約3分~4分)
江東区立第二亀戸中学校:約377–548m(徒歩約5〜7分)
すしざんまい 亀戸店:約360m
物件概要
- 交通
-
東武亀戸線 亀戸水神駅 まで 徒歩4分
- 専有面積
- 23.06㎡
- バルコニー
-
面積不明
面積不明 - 所在階/階数
- 3階/5階
- 築年数
-
2019年
(平成31)
1月
築6年 - 建ぺい率
- 容積率
- 土地権利
- 所有権
- 構造および階数
- RC(鉄筋コンクリート) 造 地上5階建
- 総戸数
- 小学校区
- 水神 ( 268m )
- 中学校区
- 第二亀戸 ( 548m )
- 地目
- 現況
- 賃貸中
- 引渡時期
- 相談
- 駐車場
- 有
- 駐車場月額
- 管理形態
- 全部委託
- 管理方式
- 管理会社
- 管理費
- 5,760円
- 修繕積立費
- 4,030円
- 上水道
- 下水道
- ガス
- 都市計画
- 用途地域
- 準工業
- 設備・条件
- モニタ付インターホン
- 備考
- 取引態様
- 仲介



