中古一戸建て 江東区北砂6丁目
所在地
江東区北砂6丁目
840万円
12.52坪
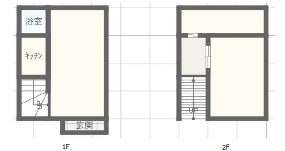
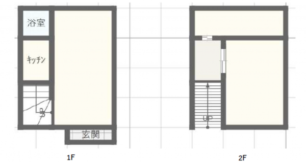
3K
大島駅徒歩11分の戸建て物件でございます。
物件概要
- 交通
-
都営新宿線 大島駅 まで 徒歩11分
- 接道状況
- 土地面積
- 公簿 28.75㎡ (8.69坪)
- 建物面積
- 41.40㎡ (12.52坪)
- 築年数
-
1979年
(昭和54)
9月
築46年 - 建ぺい率
- 80%
- 容積率
- 400%
- 土地権利
- 所有権
- 構造および階数
- 木造 地上2階建
- 小学校区
- 第六砂町 ( 450m )
- 中学校区
- 砂町 ( 160m )
- 私道負担
- 地目
- 宅地
- 現況
- 賃貸中
- 引渡時期
- 即時
- 駐車場
- 無
- 上水道
- 公共
- 下水道
- 公共
- ガス
- 都市ガス
- 都市計画
- 市街化区域
- 用途地域
- 近隣商業
- 設備・条件
- 備考
-
オーナーチェンジ物件。
未接道の為、再建築不可、駐車場無。 - 取引態様
- 仲介



