中古一戸建て 江東区大島4丁目
所在地
江東区大島4丁目
4,000万円
18.09坪
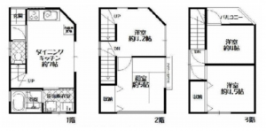
4DK
物件概要
- 交通
-
都営新宿線 西大島駅 まで 徒歩5分
都営新宿線 大島駅 まで 徒歩5分
- 接道状況
- 土地面積
- 公簿 28.21㎡ (8.53坪)
- 建物面積
- 59.81㎡ (18.09坪)
- 築年数
-
2003年
(平成15)
7月
築22年 - 建ぺい率
- 容積率
- 土地権利
- 所有権
- 構造および階数
- 木造 地上3階建
- 小学校区
- 大島南央 ( 200m )
- 中学校区
- 大島西 ( 500m )
- 私道負担
- 地目
- 宅地
- 現況
- 空
- 引渡時期
- 即時
- 駐車場
- 上水道
- 公共
- 下水道
- 公共
- ガス
- 都市ガス
- 都市計画
- 市街化区域
- 用途地域
- 近隣商業
- 設備・条件
- 備考
- 取引態様
- 仲介



