中古一戸建て 江東区大島3丁目
所在地
江東区大島3丁目
3,580万円
17.24坪
4K
都営新宿線「大島駅」へ徒歩4分。駅周辺にはスーパーや商店街、飲食店が揃っており、日々の買い物や外食に大変便利です。
商業施設や日用品店が数多くあるので、買い物に便利な立地となります。
セブン‑イレブン 西大島駅前店 徒歩3分
まいばすけっと 江東亀戸6丁目店
ファミリーマート 昭和薬品 西大島駅前店 徒歩4分
くすりの福太郎 西大島店 徒歩4分
ライフ カメイドクロック店 徒歩9分
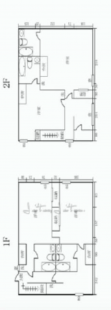
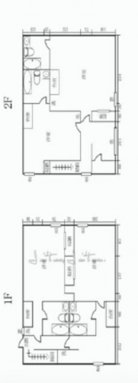
物件概要
- 交通
-
都営新宿線 東大島駅 まで 徒歩4分
- 接道状況
- 土地面積
- 49.71㎡ (15.03坪)
- 建物面積
- 57.00㎡ (17.24坪)
- 築年数
-
1970年
(昭和45)
9月
築55年 - 建ぺい率
- 60%
- 容積率
- 300%
- 土地権利
- 所有権
- 構造および階数
- 木造 地上2階建
- 小学校区
- 第二大島 ( 450m )
- 中学校区
- 第二大島 ( 500m )
- 私道負担
- 地目
- 宅地
- 現況
- 賃貸中
- 引渡時期
- 即時
- 駐車場
- 上水道
- 下水道
- ガス
- 都市計画
- 市街化区域
- 用途地域
- 準工業
- 設備・条件
- 備考
- 取引態様
- 仲介



