中古一戸建て 江東区大島6丁目
所在地
江東区大島6丁目
6,480万円
24.60坪
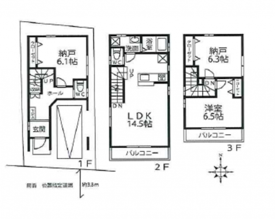
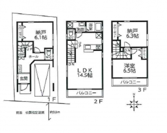
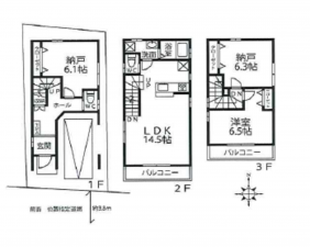
3SLDK
前面道路南向きのため、日当たり良好です。
サンロード商店街まで約20m 買い物などにも便利な立地になります。
大島駅徒歩5分 通勤通学に優れた立地となります。
物件概要
- 交通
-
都営新宿線 大島駅 まで 徒歩5分
- 接道状況
- 南側 私道3.8m 間口約4.8m
- 土地面積
- 公簿 50.86㎡ (15.38坪)
- 建物面積
- 81.33㎡ (24.60坪)
- 築年数
-
2012年
(平成24)
8月
築13年 - 建ぺい率
- 80%
- 容積率
- 300%
- 土地権利
- 所有権
- 構造および階数
- 木造 地上3階建
- 小学校区
- 第四大島 ( 400m )
- 中学校区
- 第二大島 ( 900m )
- 私道負担
- 無
- 地目
- 宅地
- 現況
- 居住中
- 引渡時期
- 期日指定
- 駐車場
- 有
- 上水道
- 下水道
- ガス
- 都市計画
- 市街化区域
- 用途地域
- 近隣商業
- 設備・条件
- カウンターキッチン
- 備考
- 取引態様
- 仲介



